Dự án Khu đô thị Thương mại Dịch vụ Tân Phú tại phường Bình Dương (TP HCM), được quy hoạch thành không gian sống hiện đại, thương mại cao cấp nằm ngay trung tâm thành phố mới Bình Dương.
Vị trí đắc địa, hạ tầng đồng bộ từng là điểm nhấn hứa hẹn tạo nên khu dân cư sầm uất. Tuy nhiên, dự án vướng bê bối lớn về chuyển nhượng đất công trái quy định.
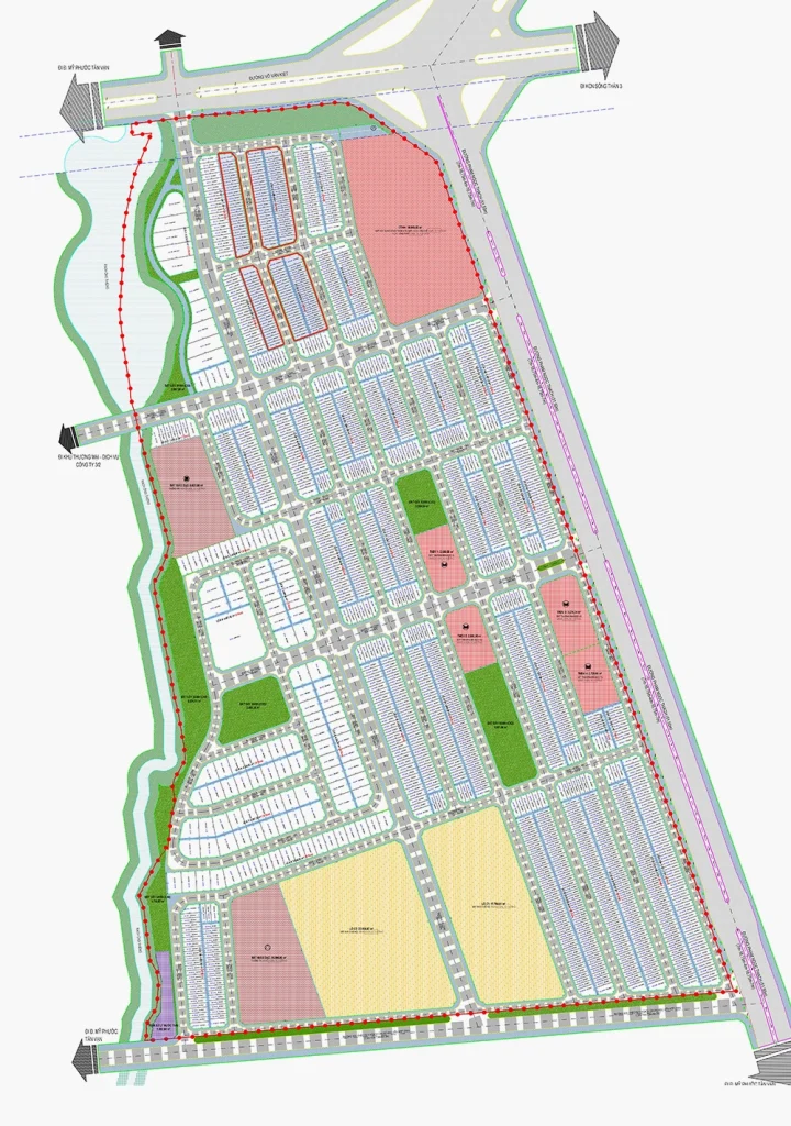
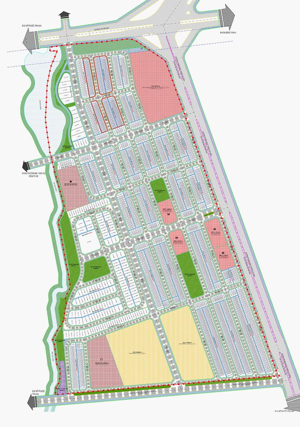
Tổng quan Khu đô thị Tân Phú (43ha)
Chủ đầu tư: Công ty TNHH Đầu tư và Xây dựng Tân Phú (liên quan đến Kim Oanh Group).
Vị trí: Tọa lạc tại khu trung tâm thành phố mới Bình Dương, phường Hòa Phú, TP. Thủ Dầu Một, tỉnh Bình Dương.
Quy mô: Diện tích 43 ha, được định hướng phát triển thành khu đô thị phức hợp bao gồm nhà phố, biệt thự, nhà liền kề thương mại và các tiện ích xã hội đồng bộ.
Điểm nhấn: Sở hữu vị trí “vàng” gần các trục giao thông lớn, liền kề trung tâm hành chính tỉnh Bình Dương, khu công nghiệp VSIP II, hứa hẹn tiềm năng kinh doanh và an cư.

Vị trí và hình ảnh thực tế dự án

Thông tin về sai phạm và kiện cáo
Khu đất 43 ha thuộc dự án Khu đô thị – Thương mại – Dịch vụ Tân Phú nằm trong khu liên hợp Dịch vụ – Đô thị – Thương mại Bình Dương, có vị trí mặt tiền đường Phạm Ngọc Thạch và Võ Văn Kiệt, thuộc phường Hòa Phú, TP. Thủ Dầu Một, tỉnh Bình Dương. Đây là một vị trí đất vàng đắc địa, chỉ cách Trung tâm hành chính tỉnh Bình Dương vài trăm mét.
Từ năm 2004 (một số nguồn ghi nhận từ năm 2006 theo quyết định giao đất của Tỉnh ủy), khu đất này được giao cho Tổng Công ty Sản xuất – Xuất nhập khẩu Bình Dương (gọi tắt là Tổng Công ty 3/2 hoặc Protrade) quản lý và sử dụng. Đây là doanh nghiệp 100% vốn nhà nước, trực thuộc sự quản lý của Tỉnh ủy Bình Dương.
Năm 2010, Tổng Công ty 3/2 ký hợp đồng thỏa thuận liên doanh với Công ty Âu Lạc để thành lập Công ty TNHH Đầu tư – Xây dựng Tân Phú, với mục đích đầu tư xây dựng và kinh doanh dự án trên khu đất 43 ha. Cơ cấu vốn điều lệ ban đầu là 200 tỷ đồng, trong đó Tổng Công ty 3/2 góp 60 tỷ đồng (chiếm 30%), còn Công ty Âu Lạc góp 140 tỷ đồng (chiếm 70%).
Đến tháng 12/2016, dù Tổng Công ty 3/2 vẫn còn 100% vốn nhà nước, ông Nguyễn Văn Minh (lúc đó là Chủ tịch HĐQT kiêm Tổng Giám đốc) đã đại diện ký hợp đồng chuyển nhượng toàn bộ quyền sử dụng đất 43 ha cho Công ty Tân Phú với giá hơn 250 tỷ đồng (cụ thể khoảng 250 tỷ đồng, tương đương gần 580.000 – 600.000 đồng/m² theo đơn giá thỏa thuận từ năm 2010).
Theo kết luận của Hội đồng định giá tài sản thường xuyên trong tố tụng hình sự tỉnh Bình Dương (và được Cơ quan Cảnh sát điều tra Bộ Công an xác nhận trong các kết luận điều tra sau này), giá trị quyền sử dụng đất khu 43 ha tại thời điểm tháng 12/2016 là hơn 552 tỷ đồng (cụ thể một số tài liệu ghi nhận 552,9 tỷ đồng). So với giá chuyển nhượng thực tế chỉ hơn 250 tỷ đồng, hành vi này đã gây thất thoát tài sản nhà nước hơn 302 tỷ đồng (chính xác khoảng 302,8 tỷ đồng).
Việc chuyển nhượng khu đất 43 ha đã bị xác định là vi phạm nghiêm trọng các quy định về quản lý, sử dụng tài sản nhà nước, bao gồm việc không xin chủ trương đúng thẩm quyền, không thực hiện đấu giá, định giá sai thời điểm, “qua mặt” Tỉnh ủy bằng cách không bàn giao đất về đơn vị khác theo phương án đã phê duyệt, đồng thời có dấu hiệu thông đồng, câu kết giữa lãnh đạo Tổng Công ty 3/2 với các bên liên quan (trong đó có con rể ông Nguyễn Văn Minh là Nguyễn Đại Dương – người điều hành thực tế Công ty Âu Lạc thông qua đứng tên hộ) nhằm thâu tóm đất công với giá rẻ, sau đó chuyển nhượng tiếp cho tư nhân.
Hậu quả của sai phạm này đã khiến hàng loạt lãnh đạo tỉnh Bình Dương và lãnh đạo Tổng Công ty 3/2 bị kỷ luật, truy tố và xét xử hình sự về các tội danh liên quan đến vi phạm quy định về quản lý, sử dụng tài sản nhà nước gây thất thoát, lãng phí, thậm chí tham ô tài sản.



















